Skip to content
 Featured elevation rendering of the The Willows floorplan
The Willows
Reva Westfield

The Willows

urban towns |1655 - 1715 sq.ft.

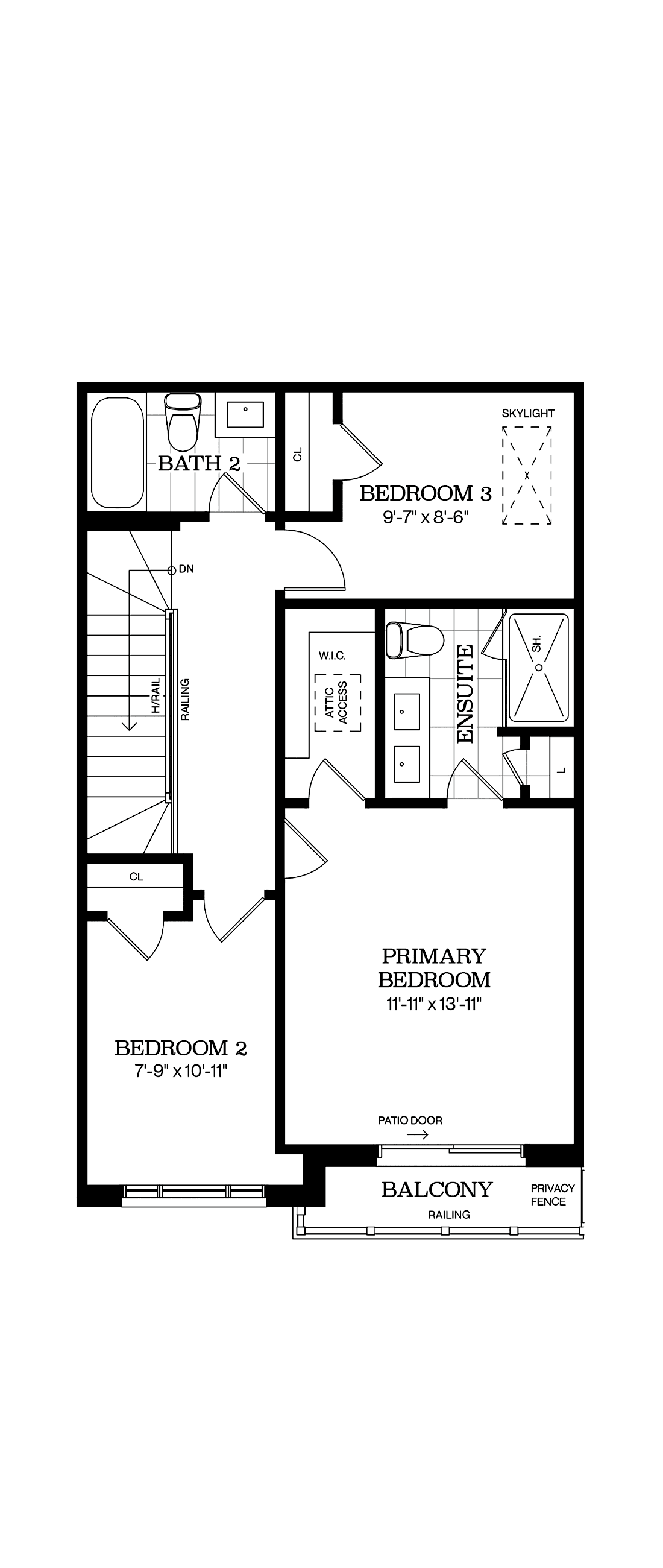
The Willows is an urban townhome designed with flexibility and outdoor living in mind, offering three levels of thoughtfully planned space. The lower level features a covered porch entry, interior garage access, storage, and a convenient laundry area. On the main floor, enjoy open-concept living with a modern kitchen and great room, plus a dedicated study area and walkout access to a private terrace. For added versatility, select plans offer an optional main-floor bedroom and bathroom configuration (per plan). Upstairs, the primary bedroom includes a walk-in closet and ensuite, complemented by two additional bedrooms and a full main bathroom, plus an upper-level balcony.

3
2.5

Floorplan Details

Download Floorplan
Greater Home Guarantee Seal of Approval

“Greater Home” by Great Gulf, is our promise to offer homeowners a better built home.

Learn More

Interested?
Let us know!

Another Great Gulf community, perfect for family living. Interested in learning more? Get in touch with us by completing the form .

Loading...