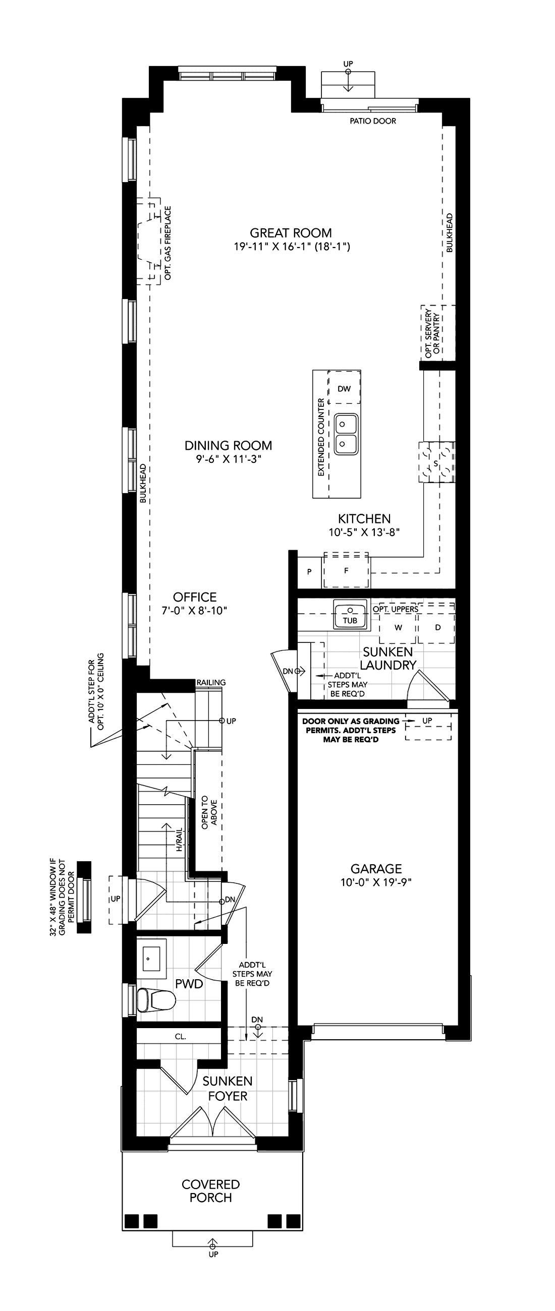
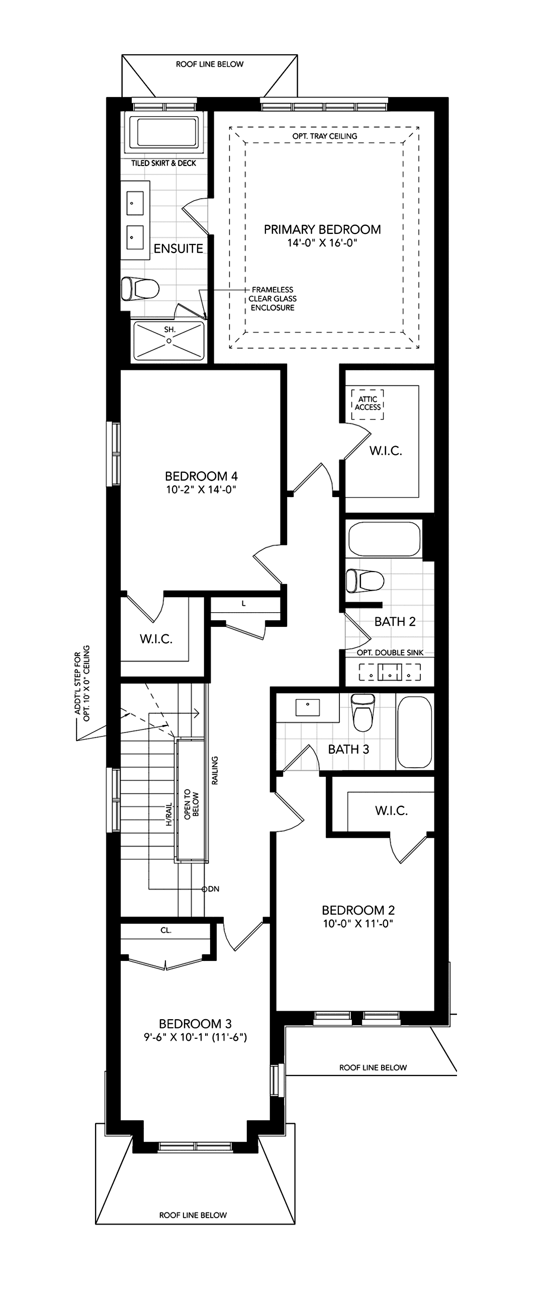
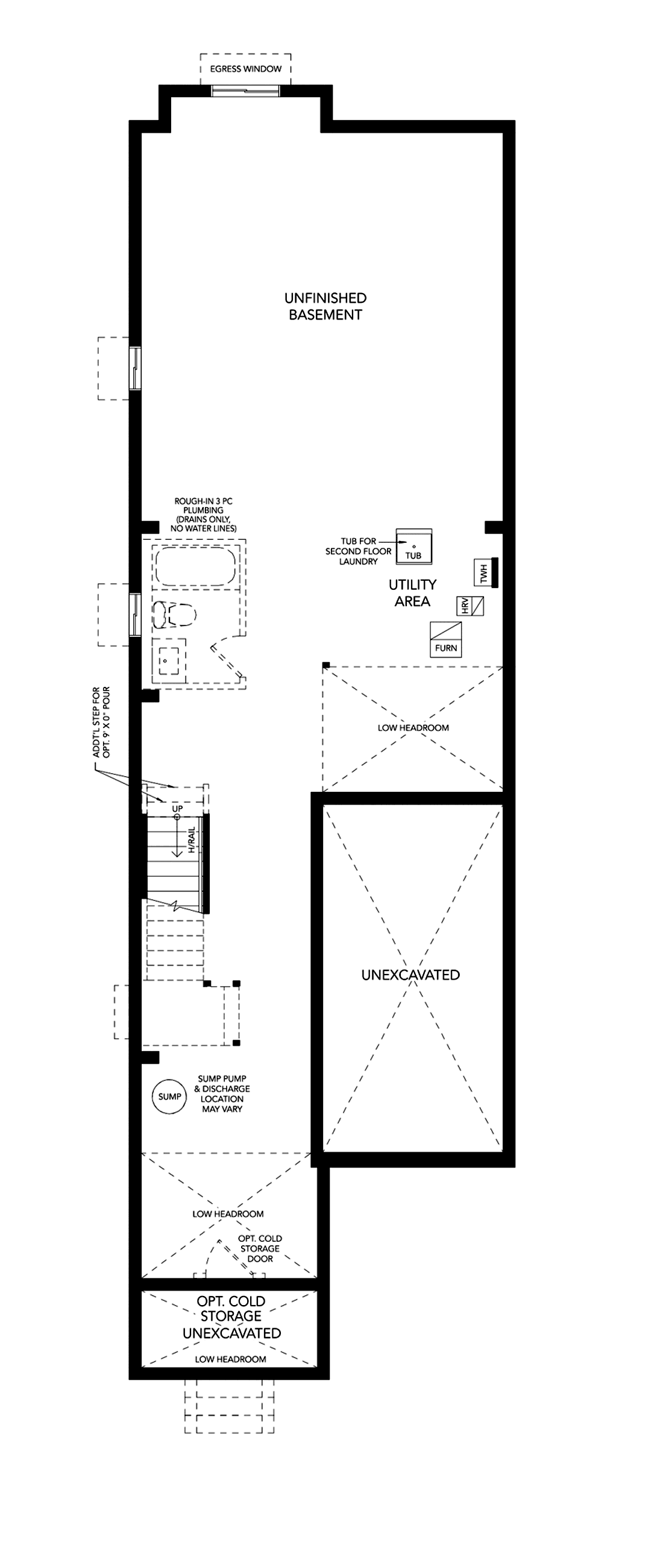
Discover the Harvard—a beautifully designed home where style, function, and comfort come together in perfect harmony. The L-shaped kitchen with a central island is the heart of the home, seamlessly connecting to a spacious great room that’s perfect for everyday living and entertaining. A large garage adds convenience, while a dedicated office space and a unique sunken laundry room elevate the functionality of the main floor. Upstairs, the primary bedroom retreat offers a private ensuite and walk-in closet, joined by two additional bedrooms and a full bathroom. A fourth bedroom includes its own ensuite and walk-in closet, providing added flexibility for guests or growing families. A walk-in linen closet adds extra storage to support busy households. The basement is ready for future expansion, featuring rough-in plumbing for an optional bathroom and available space for cold storage. With thoughtful design choices and versatile living areas, the Harvard is built to meet the needs of today’s modern family.

“Greater Home” by Great Gulf, is our promise to offer homeowners a better built home.
Learn More
Ground Floor
Second Floor
Basement
Basement - Full House Selection
Options - Full House SelectionAnother Great Gulf community, perfect for family living. Interested in learning more? Get in touch with us by completing the form .