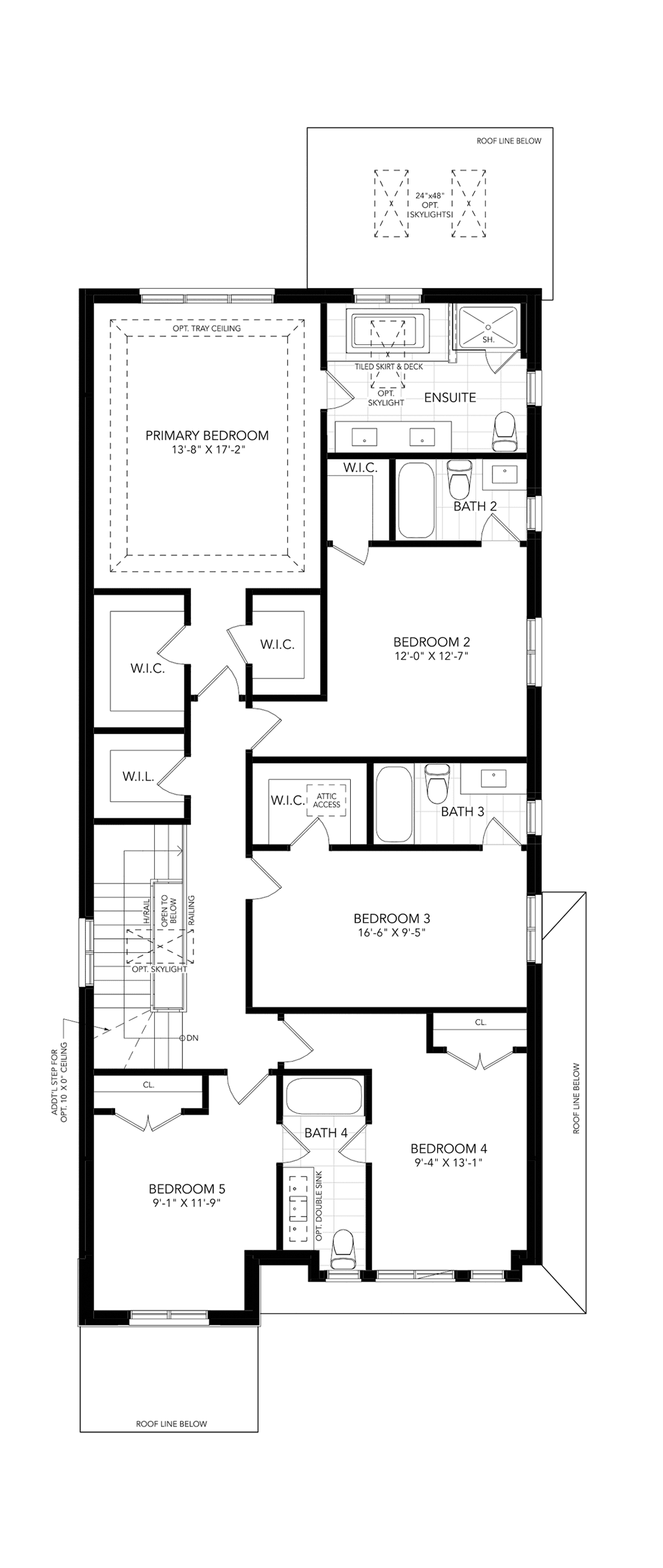
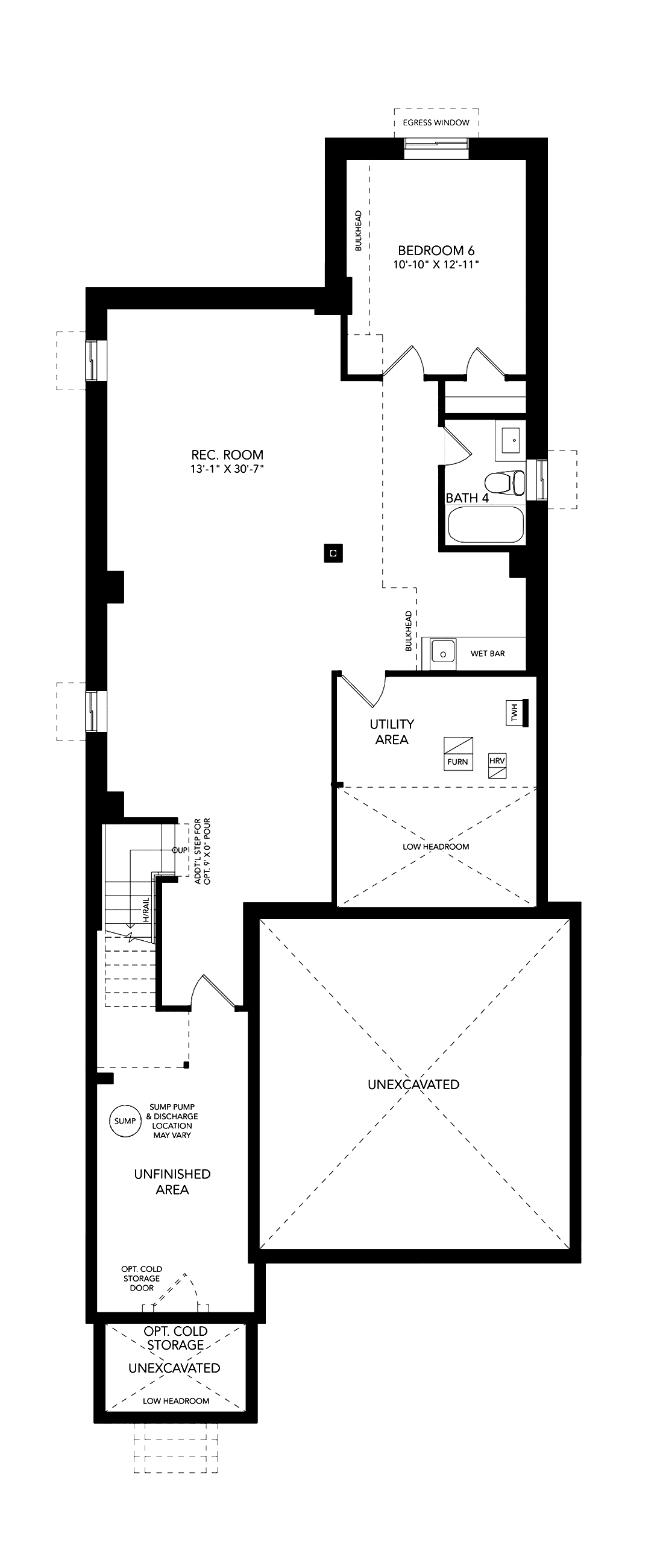
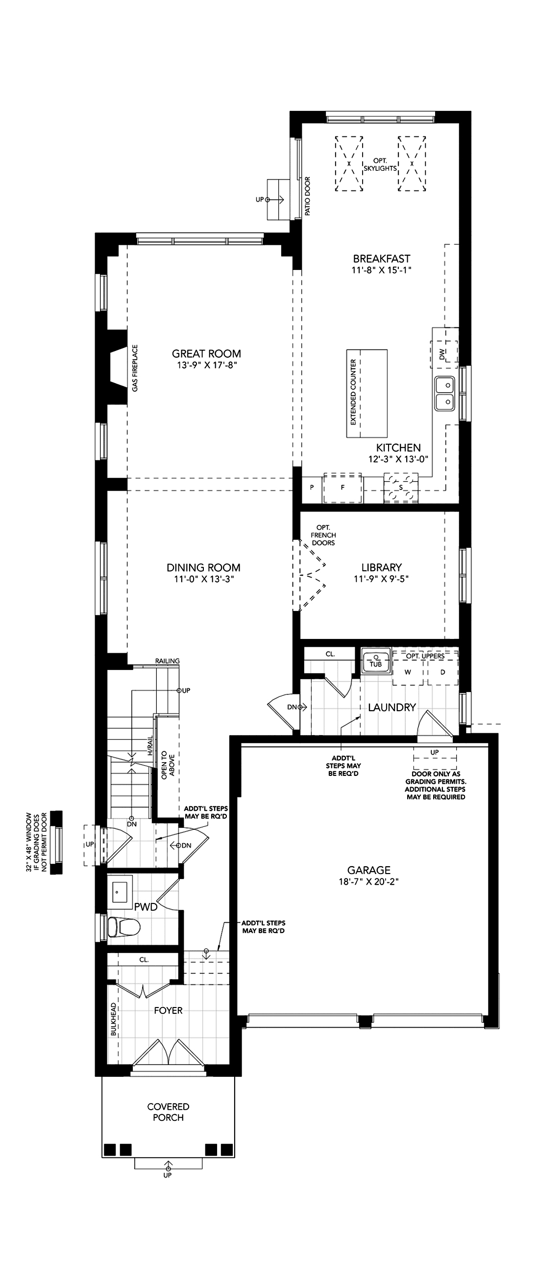
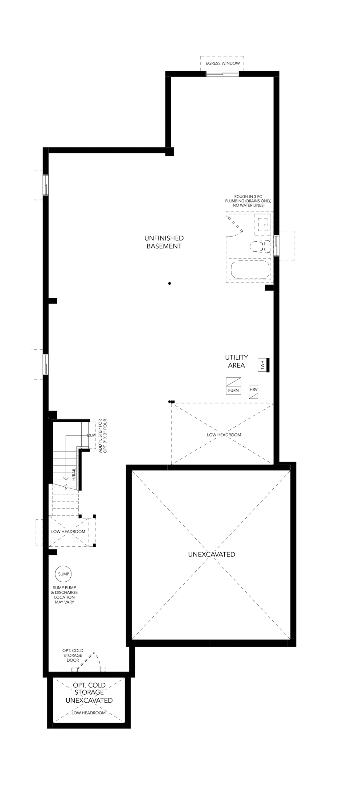
Discover the Purdue—a spacious and elegant home designed for luxurious living and maximum comfort. The L-shaped kitchen with a central island serves as the perfect space for cooking and entertaining, seamlessly flowing into the open great room for relaxed family time and gatherings. A large two-car garage offers generous storage, while a library provides a quiet retreat and the main floor laundry room adds convenience. Upstairs, the primary bedroom retreat boasts a private ensuite and two walk-in closets for ultimate organization and comfort. Two additional bedrooms with ensuites and walk-in closets offer flexibility for family or guests, while two more bedrooms, two additional bathrooms, and a walk-in linen closet provide ample space and storage. The basement is ready for future expansion with rough-in plumbing for an optional bathroom and space for cold storage. With thoughtful design and spacious layouts, the Purdue is a home built for modern living and growing families.

“Greater Home” by Great Gulf, is our promise to offer homeowners a better built home.
Learn More
Ground Floor
Second Floor
Basement
Basement - Full House Selection
Options - Full House SelectionAnother Great Gulf community, perfect for family living. Interested in learning more? Get in touch with us by completing the form .