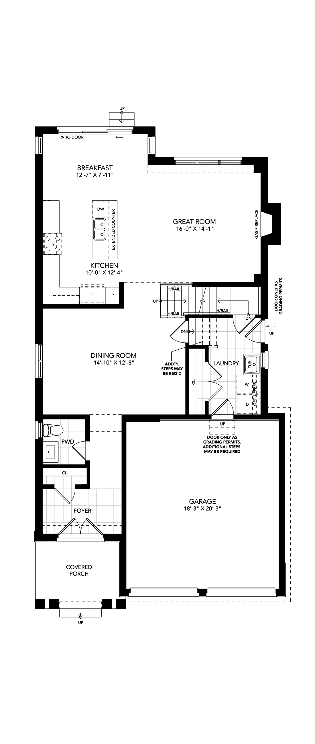
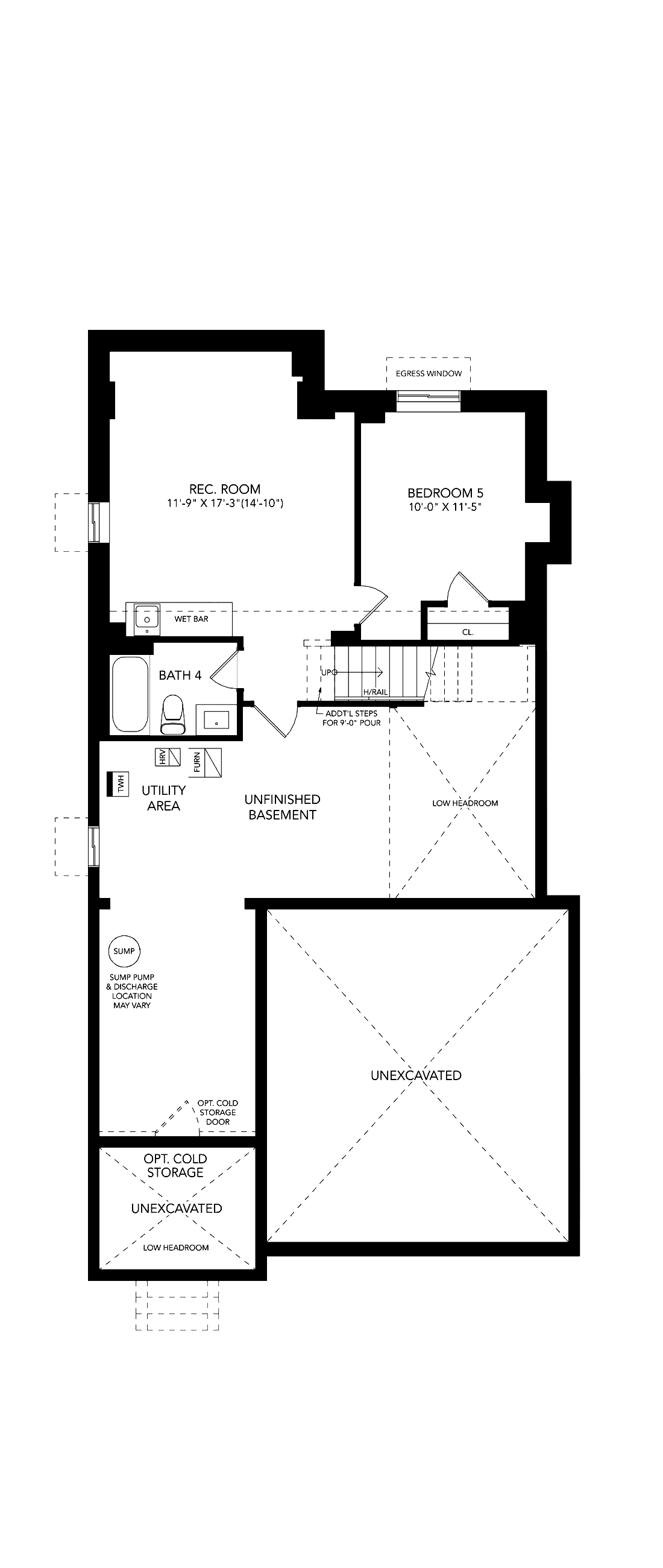
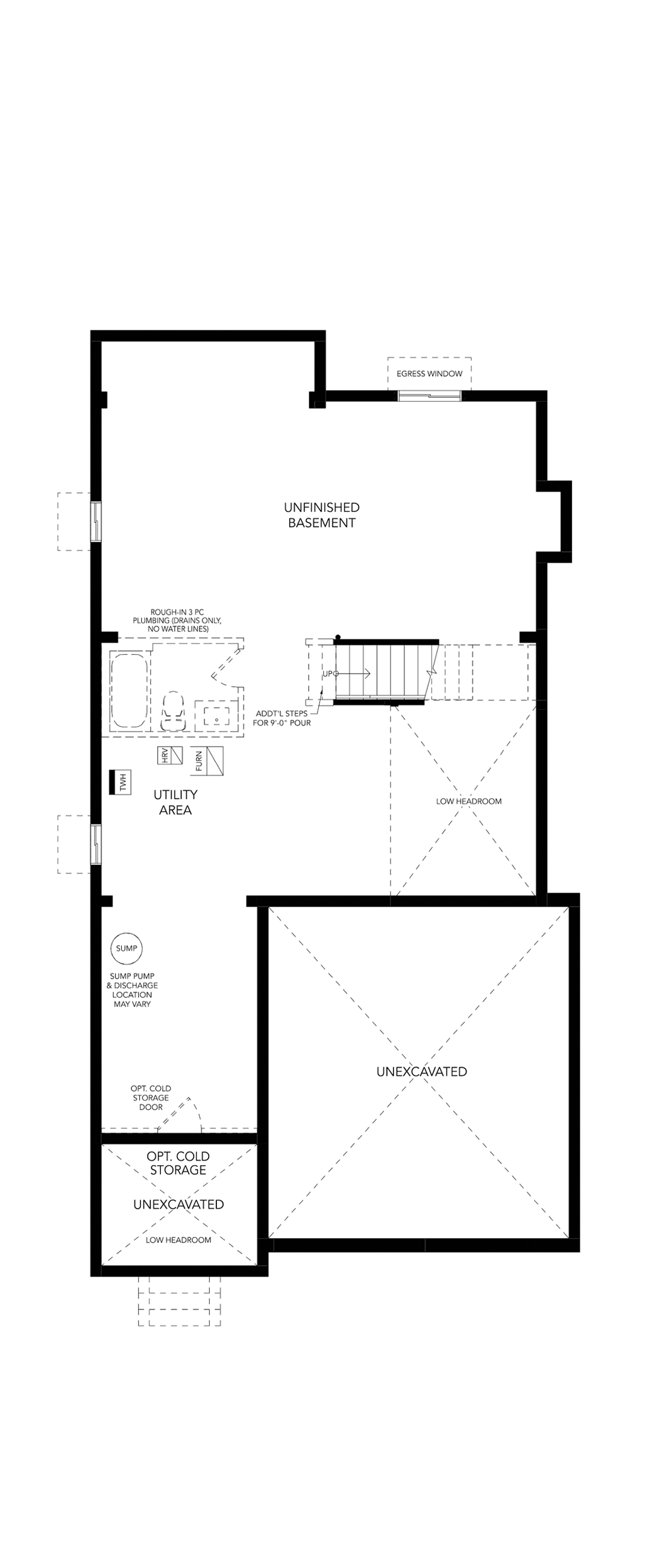
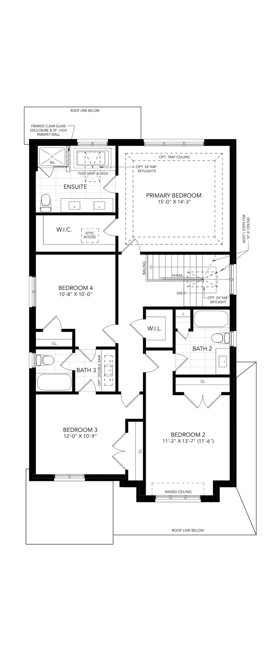
Discover the Northwestern—a beautifully crafted home that blends style and practicality with every detail. The L-shaped kitchen with a central island is perfect for both cooking and entertaining, flowing seamlessly into the great room featuring a gas fireplace, ideal for cozy family gatherings. A large two-car garage offers plenty of storage, while the dedicated laundry room adds convenience. Upstairs, the primary bedroom retreat features a private ensuite and walk-in closet for ultimate comfort and organization. Four additional bedrooms, two additional bathrooms, and a walk-in linen closet ensure plenty of space for your family’s needs. The basement is ready for customization with rough-in plumbing for an optional bathroom and space for cold storage. Thoughtfully designed, the Northwestern offers a perfect balance of comfort, style, and flexibility.

“Greater Home” by Great Gulf, is our promise to offer homeowners a better built home.
Learn More
Ground Floor
Second Floor
Basement
Basement - Full House Selection
Options - Full House SelectionAnother Great Gulf community, perfect for family living. Interested in learning more? Get in touch with us by completing the form .