Skip to content
 Featured elevation rendering of the The Lancaster floorplan
The Lancaster
Elevation A Shown
Oakpointe

The Lancaster

singles 28' |2255 sq.ft

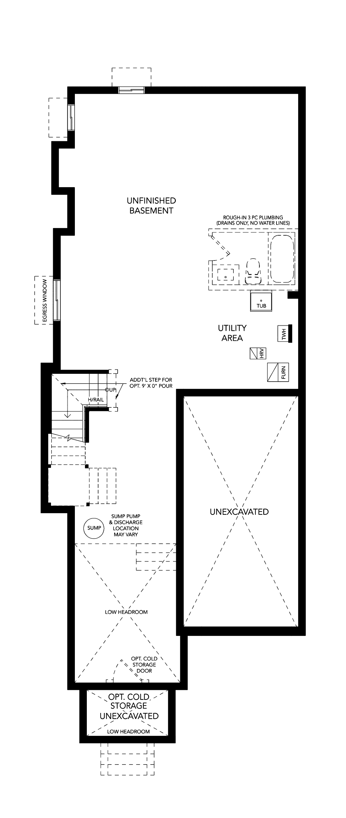
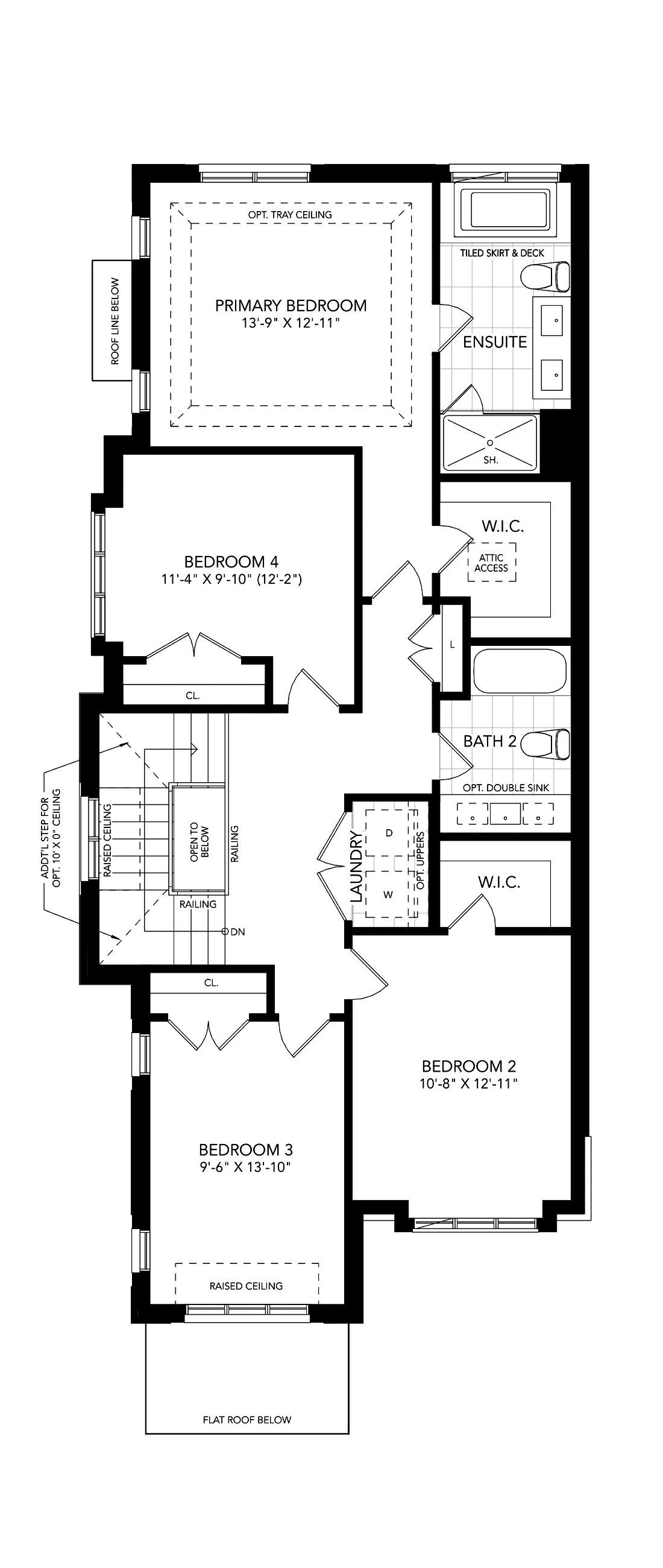
Discover the Lancaster—a thoughtfully designed home that combines practicality with style. The L-shaped kitchen with a central island serves as the heart of the home, seamlessly connecting to the open great room, perfect for both casual family time and entertaining. A large garage provides plenty of storage space, while upstairs, the primary bedroom retreat features a private ensuite and walk-in closet for ultimate comfort. Three additional bedrooms, a full bathroom, and a dedicated laundry room provide all the space and convenience a growing family needs. Downstairs, the basement is ready for your personal touch, with rough-in plumbing for an optional bathroom and space for cold storage. With flexible design options and smart use of space, the Lancaster is designed to fit your modern lifestyle.

4
2.5

Floorplan Details

Download Floorplan
Greater Home Guarantee Seal of Approval

“Greater Home” by Great Gulf, is our promise to offer homeowners a better built home.

Learn More

Interested?
Let us know!

Another Great Gulf community, perfect for family living. Interested in learning more? Get in touch with us by completing the form .

Loading...