Discover the Columbia—a thoughtfully crafted home that balances everyday function with modern comfort. The L-shaped kitchen with a central island sets the stage for easy meals and lively gatherings, opening into a spacious great room perfect for relaxing or entertaining. A large garage offers generous storage, while the dedicated office space and main floor laundry room add practical convenience to daily living. Upstairs, the primary bedroom retreat features a private ensuite and a walk-in closet, creating a peaceful haven at the end of the day. Three additional bedrooms, a full bathroom, and a walk-in linen closet ensure that everyone has the space they need. Downstairs, the basement is ready for your personal touch, with rough-in plumbing for an optional bathroom and space for cold storage. With flexible layout options and thoughtful details throughout, the Columbia is designed for how you live today.

“Greater Home” by Great Gulf, is our promise to offer homeowners a better built home.
Learn More
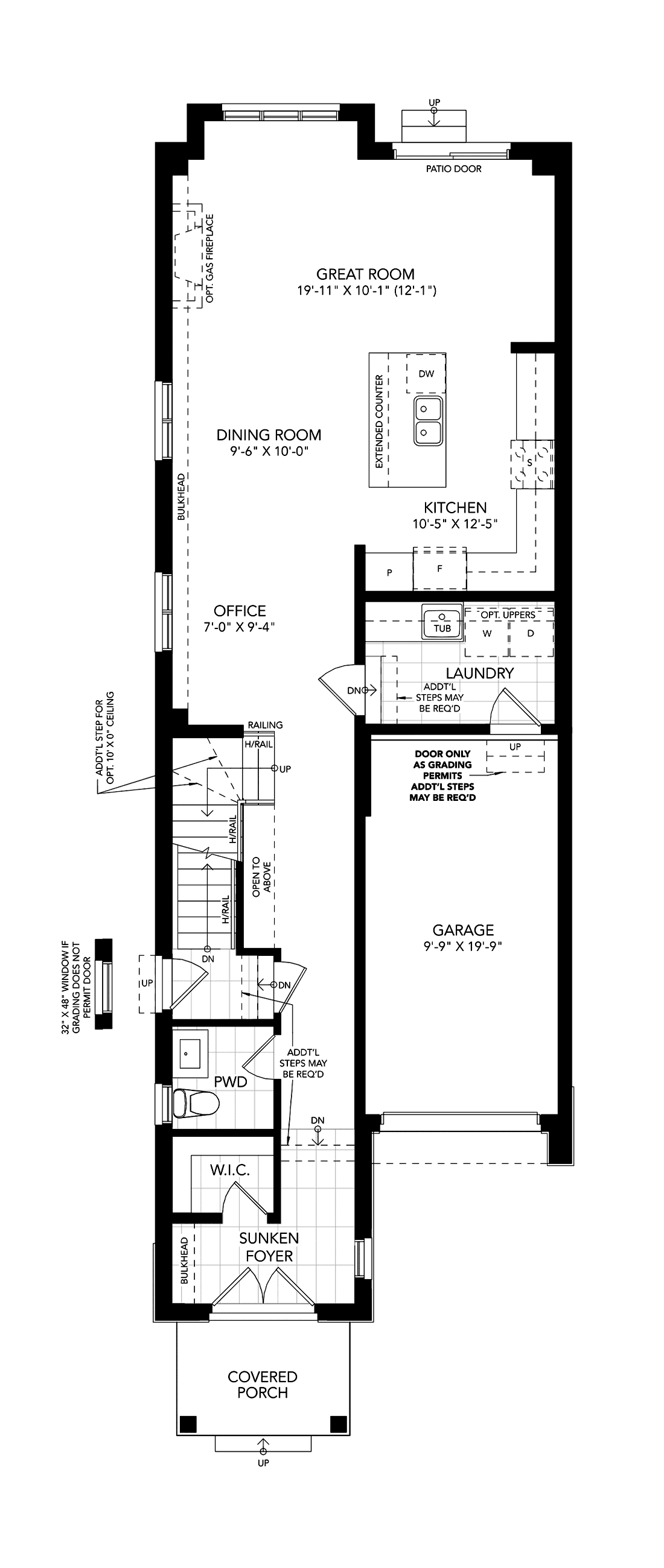
Ground Floor
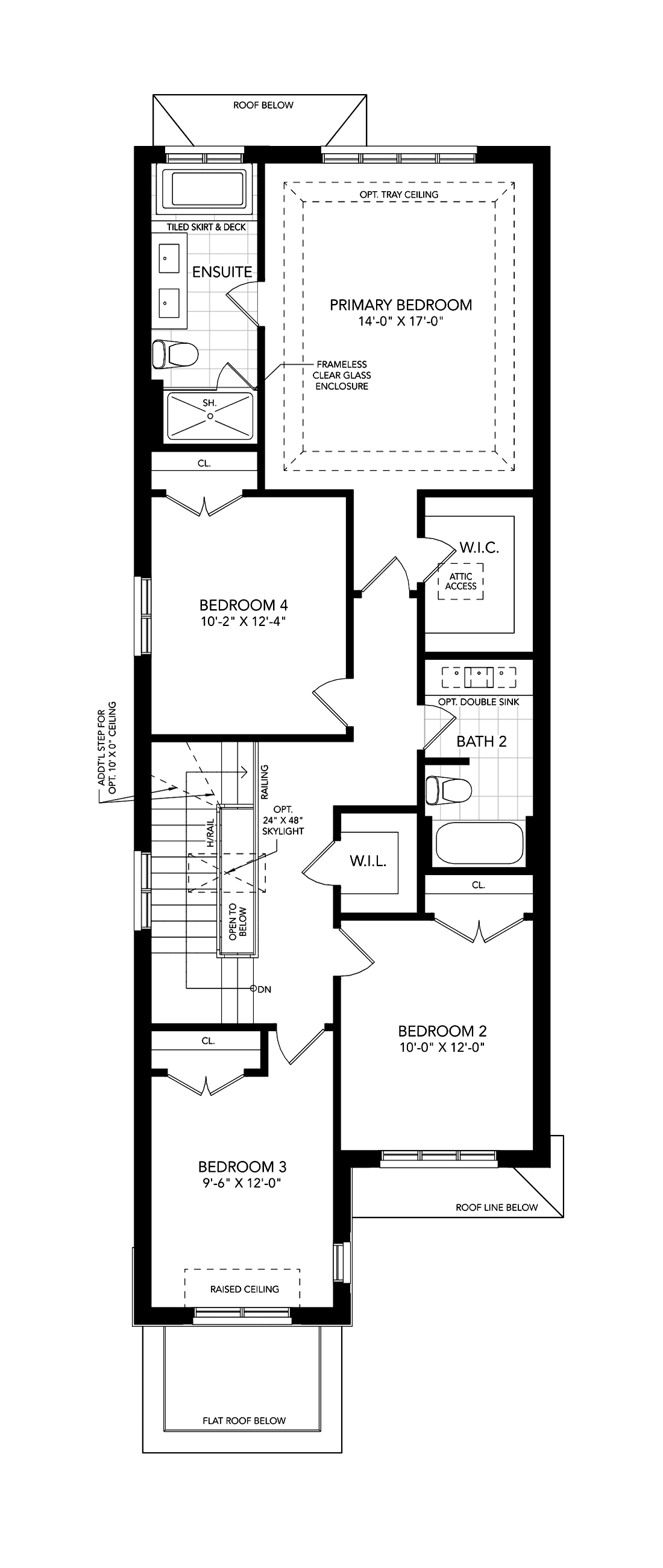
Second Floor
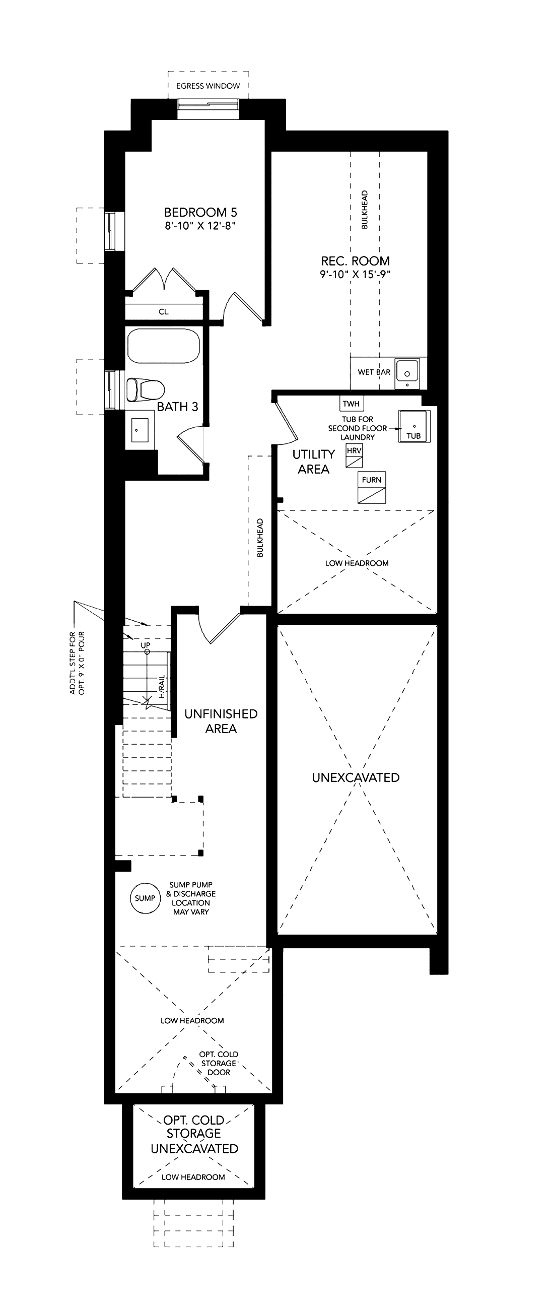
Basement
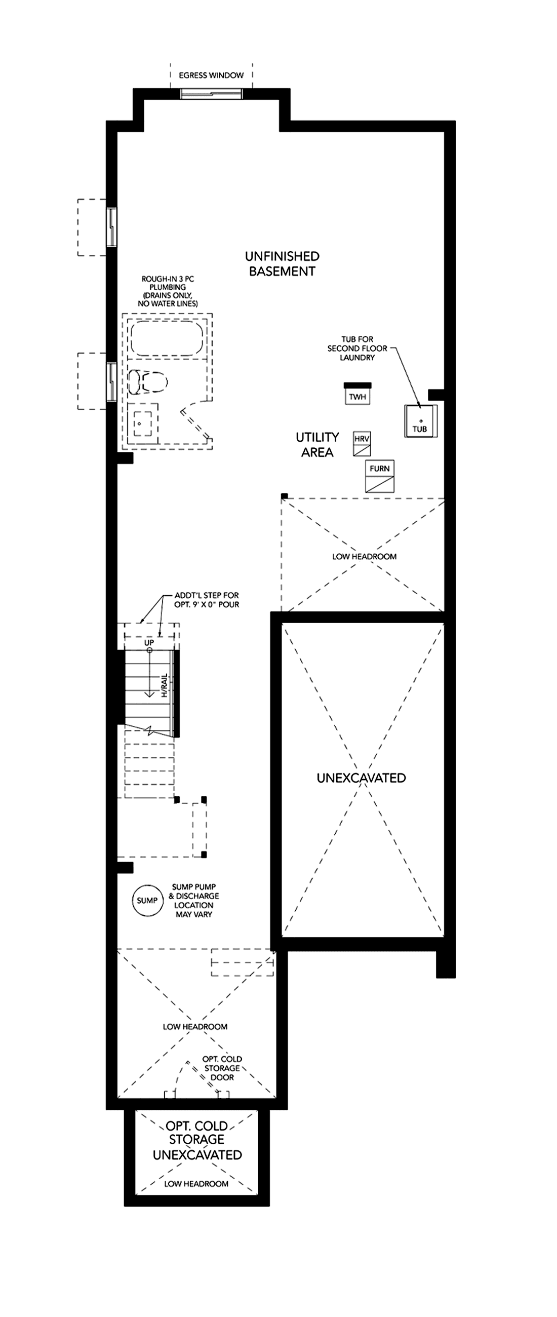
Basement - Full House Selection
Options - Full House SelectionAnother Great Gulf community, perfect for family living. Interested in learning more? Get in touch with us by completing the form .