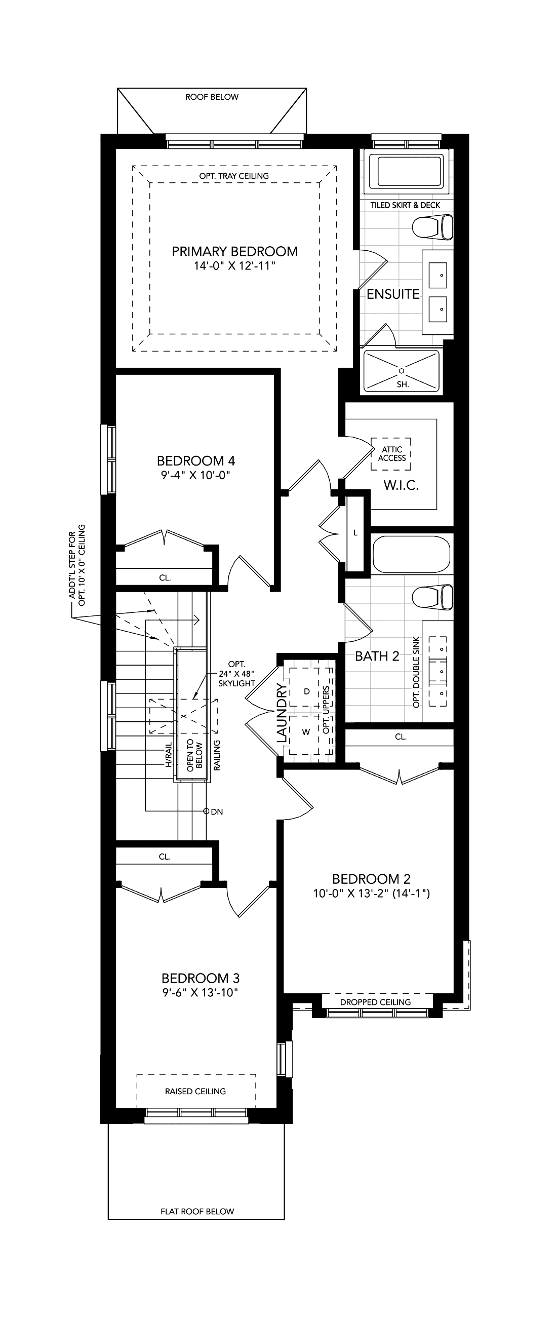
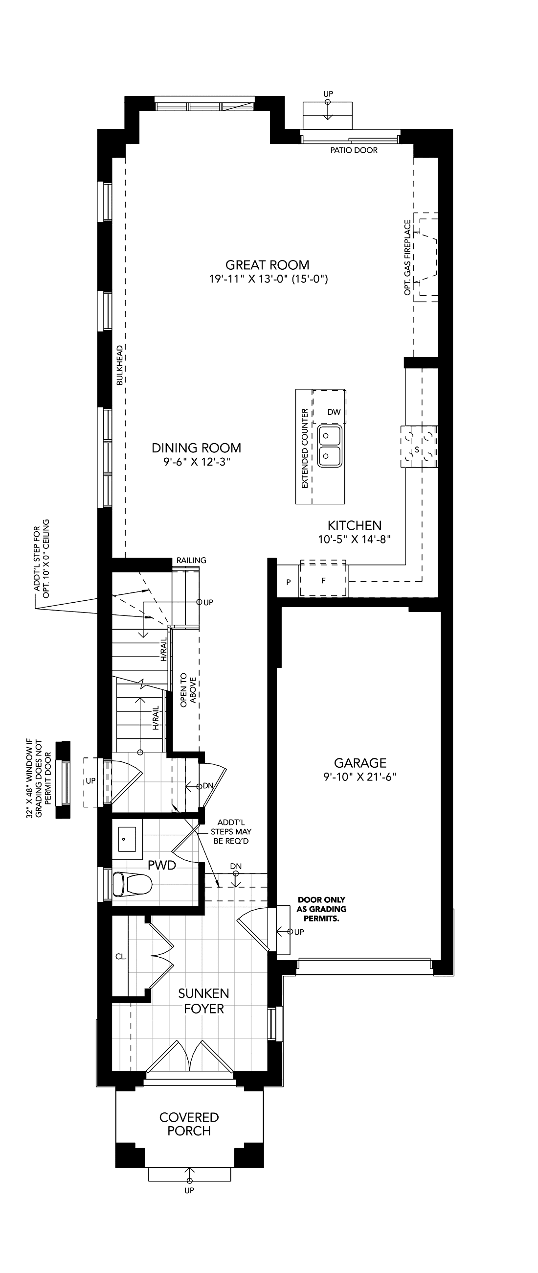
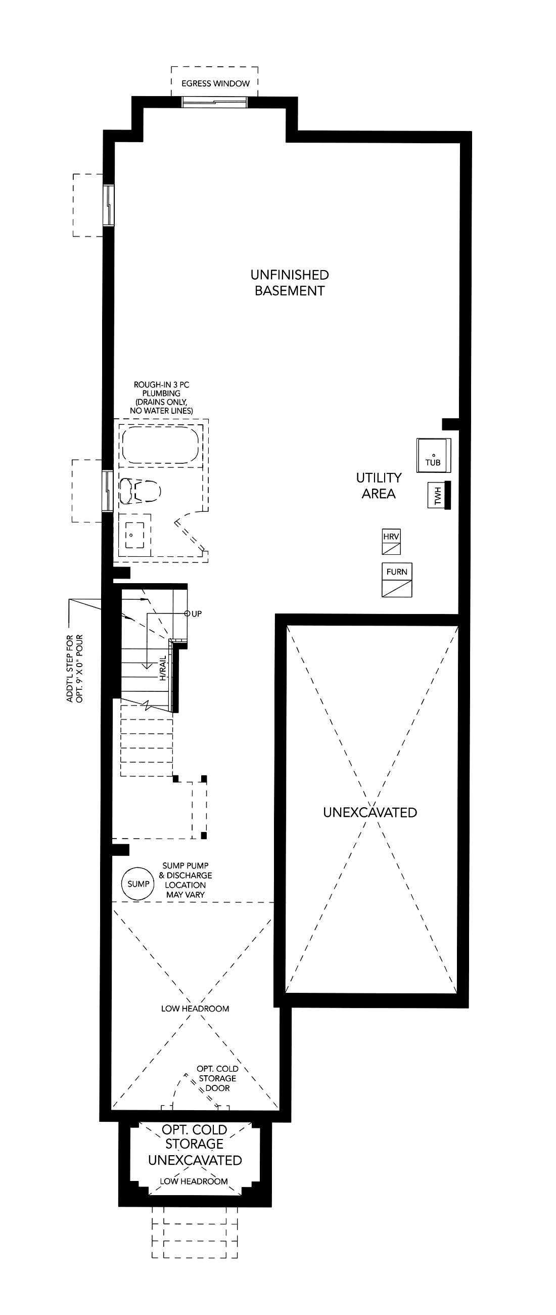
Discover the Cambridge—a stylish blend of smart design and modern functionality. The L-shaped kitchen with a central island serves as the heart of the home, ideal for both everyday meals and entertaining guests, opening into a welcoming great room that invites comfort and connection. A spacious garage offers ample storage, while upstairs, the serene primary bedroom retreat features a private ensuite and a generous walk-in closet. Three additional bedrooms, a full bathroom, and a dedicated laundry room provide the space and convenience busy households need. Downstairs, the basement comes ready for future possibilities, with rough-in plumbing for an optional bathroom and space for optional cold storage. Optional layouts throughout allow you to personalize the home to suit your lifestyle. Experience the Cambridge—a home where thoughtful design meets everyday comfort.

“Greater Home” by Great Gulf, is our promise to offer homeowners a better built home.
Learn More
Ground Floor
Second Floor
Basement
Basement - Full House SelectionAnother Great Gulf community, perfect for family living. Interested in learning more? Get in touch with us by completing the form .