Skip to content
 Featured elevation rendering of the The Dragonfly floorplan
The Dragonfly
Elevation A Shown
Five Creeks Estates

The Dragonfly

semi detached |1550 - 1565 sq.ft.

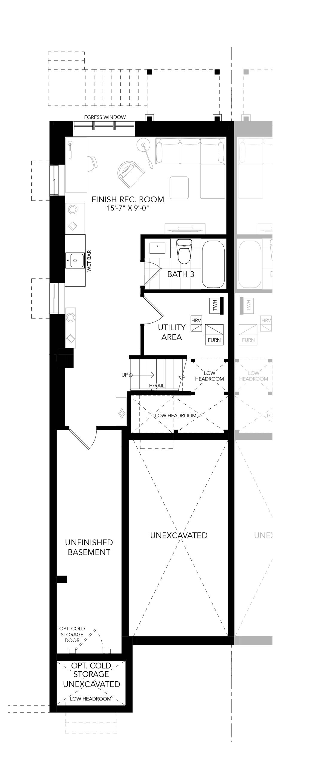
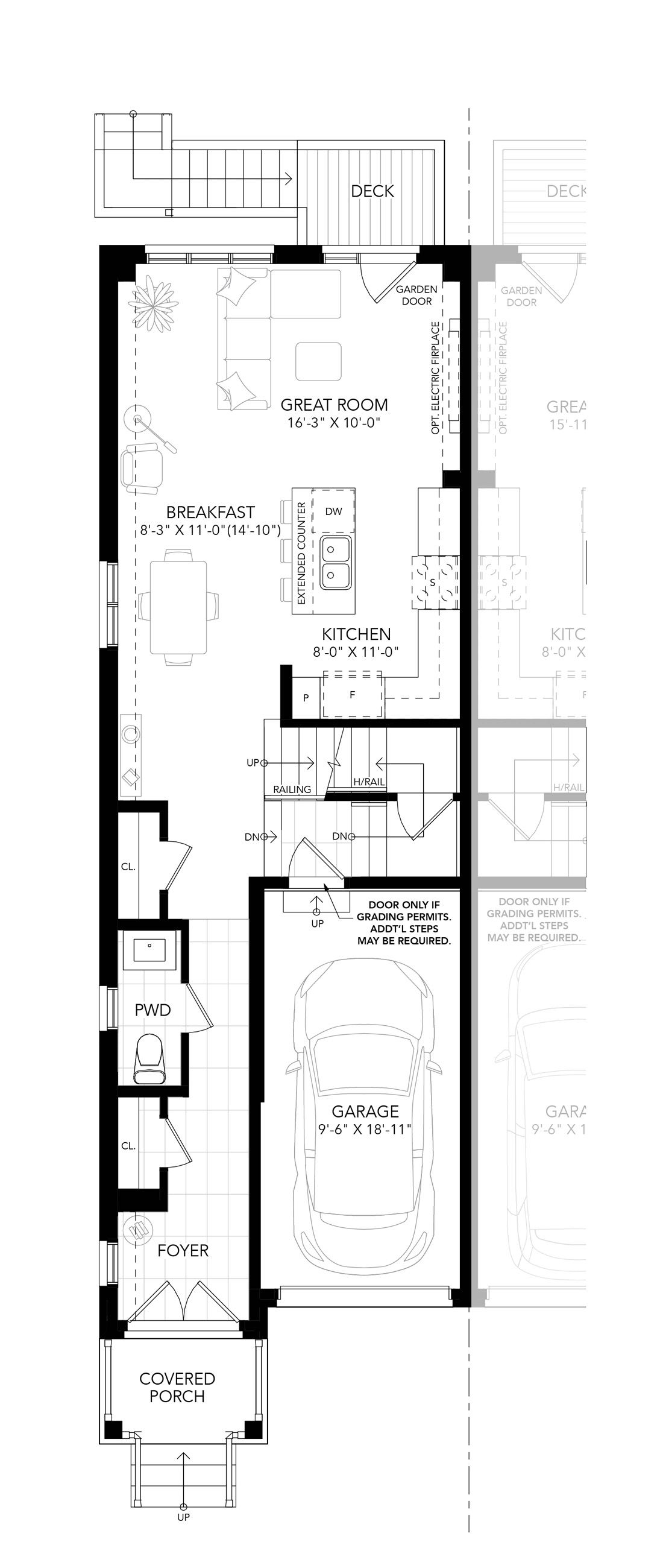
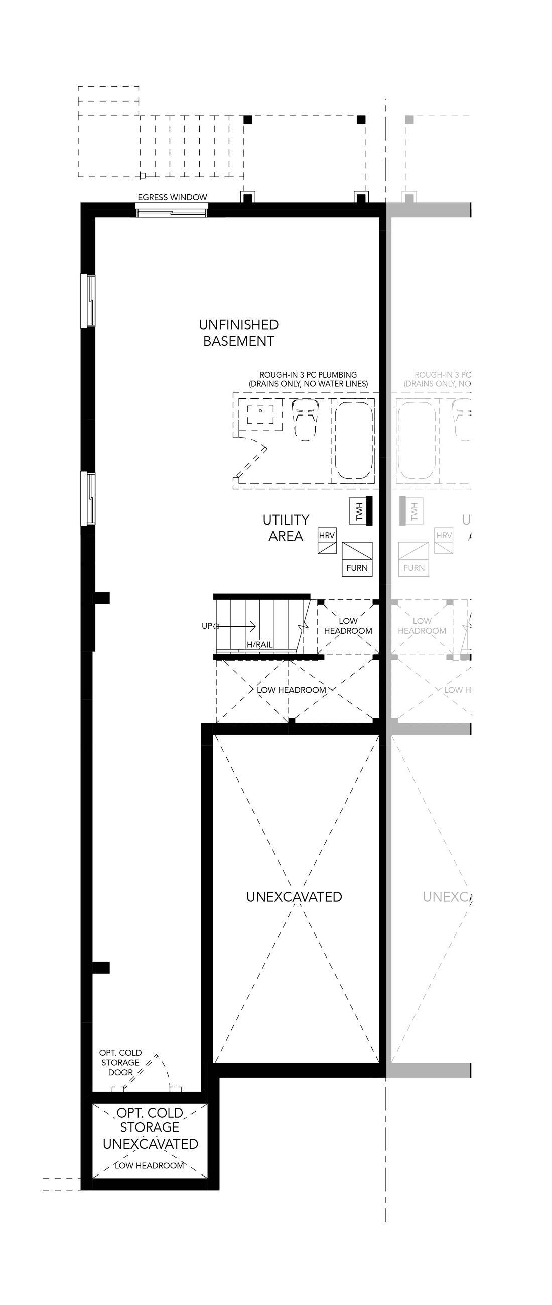
Discover The Dragonfly Fullhouse—a beautifully designed semi-detached home that balances style and functionality. The L-shaped kitchen with island serves as the heart of the home, seamlessly flowing into the spacious great room, ideal for both relaxation and entertaining. A large garage provides convenient storage. The primary bedroom retreat offers an ensuite and two walk-in closets, creating a private sanctuary. Two additional bedrooms, a full bathroom, and a well-positioned laundry room add practicality. The fully finished basement includes a rec room, an additional bathroom, and space for cold storage. With thoughtful design and versatile options, The Dragonfly Fullhouse is tailored to suit your lifestyle.

3
2.5

Floorplan Details

Download Floorplan
Greater Home Guarantee Seal of Approval

“Greater Home” by Great Gulf, is our promise to offer homeowners a better built home.

Learn More

Interested?
Let us know!

Another Great Gulf community, perfect for family living. Interested in learning more? Get in touch with us by completing the form .

Loading...